鄂倫春產品中心
鄂倫春節能泵
鄂倫春自吸泵
鄂倫春磁力泵
鄂倫春隔膜泵
鄂倫春油泵
鄂倫春化工泵
鄂倫春消防泵
鄂倫春螺桿泵
鄂倫春排污泵
鄂倫春離心泵
- 鄂倫春氟塑料離心泵
- 鄂倫春耐腐蝕離心泵
- 鄂倫春多級離心泵
- 鄂倫春單級雙吸離心泵
- 鄂倫春不銹鋼離心泵
- 鄂倫春管道離心泵
- 鄂倫春單級單吸離心泵
- 鄂倫春低轉速離心泵
- 鄂倫春立式離心泵
- 鄂倫春臥式離心泵
- 鄂倫春玻璃鋼離心泵
鄂倫春多級泵
鄂倫春紙漿泵
鄂倫春成套供水設備
鄂倫春一體化預制泵站
鄂倫春污水提升泵站
鄂倫春油水分離器
新聞資訊
聯系我們
聯系人: 陳經理
手機: 152-1660-6588
電話: 152-1660-6588
郵箱: shxinzhili@126.com
地址: 上海市嘉定區春濃路312號
鄂倫春CYZ-A防爆自吸油泵
防爆自吸油泵,防爆自吸油泵價格,防爆自吸油泵廠家,防爆自吸油泵選型,防爆自吸油泵定制,防爆自吸油泵多少錢,CYZ-A防爆自吸油泵適用于石油行業、陸地油庫、油罐車的理想產品,并適合于作船用貨油泵、艙底泵和壓載泵及機器冷卻水循環等。

CYZ-A防爆自吸油泵概述
該泵適用于石油行業、陸地油庫、油罐車的理想產品,并適合于作船用貨油泵、艙底泵和壓載泵及機器冷卻水循環等,分別輸送汽油、煤油、柴油、航煤等石油產品和海水、清水,介質溫度-20℃~80℃,如輸送化工液體可改用耐腐蝕機械密封。
CYZ-A防爆自吸油泵主要特點
1、屬自吸式離心泵,它具有結構簡單、操作方便、運行平穩、維護容易、效率高、壽命長具有較強的自吸能力等優點。管路中不需底閥,工作前只需保證泵體內儲有定量引油即可。
用于油輪或輸水船舶上時,可兼作掃艙泵,掃艙效果良好。
2、是選用優質材料精制而成,密封采用硬質合金機械密封,經久耐用,吐出管路不需要安裝安全閥,吸入管路不需要安裝底閥,因此簡化了管路系統,又改善了勞動條件。
CYZ-A防爆自吸油泵性能技術參數
CYZ-A防爆自吸油泵口徑:25-300mm
CYZ-A防爆自吸油泵流量:3.2-500m3/h
CYZ-A防爆自吸油泵揚程:12-80m
CYZ-A防爆自吸油泵轉速:1450/2900r/min
CYZ-A防爆自吸油泵溫度:-20-80℃
CYZ-A防爆自吸油泵材質:鑄鐵、不銹鋼
CYZ-A型防爆自吸油泵密封:耐腐機械密封
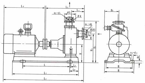
CYZ-A防爆自吸油泵結構圖

CYZ-A防爆自吸油泵安裝圖

CYZ-A防爆自吸油泵使用注意事項
(一)起動前的準備及檢查工作:
1、CYZ-A防爆自吸油泵根據泵的工作運轉狀況;
分別采用優質鈣基黃油和10號機油進行潤滑;
如果采用黃油潤滑的泵應定期向軸承箱內加注黃油;
采用機油潤滑的泵,如果油位不足,則加足之。
2、檢查CYZ-A防爆自吸油泵殼內的儲液是否高于葉輪的上邊緣;
如若不足,可以從泵殼上的加液口處直接向泵體內注入儲液;
不應在儲液不足的情況下啟動運轉,泵則不能正常工作,且易損壞機械密封。
3、檢查CYZ-A防爆自吸油泵的轉動部件是否有卡住磕碰現象。
4、檢查CYZ-A防爆自吸油泵泵體底腳及各聯結處螺母有無松動現象。
5、檢查CYZ-A防爆自吸油泵軸與電動機主軸的同軸度或平行度。
6、檢查CYZ-A防爆自吸油泵進口管路是否漏氣,如有漏氣,必須設法排除。
7、打開吸入管路的閥門,稍開(不要全開)出口控制閥。
(二)停泵
1、首先必須關閉吐出管路上的閘閥。
2、使泵停止轉動。
3、在寒冷季節,應將泵體內的儲液和軸承體冷卻室內的水放空,以防凍裂機件。
CYZ-A防爆自吸油泵性能型譜圖

- 上一個:沒有了
- 下一個:沒有了


客服1